
Verkstadslokal 438 kvm

Verkstadslokal 438 kvm

Verkstadslokal 438 kvm

Verkstadslokal 438 kvm

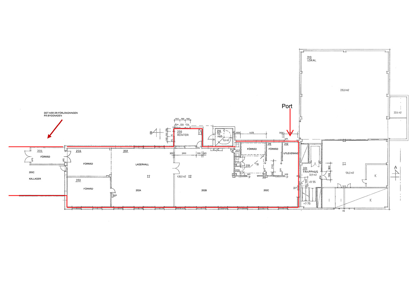
En Garage/verkstads lokal i Hörnefors
Omklädningsrum och fikarum i samma byggnad delas med annan hyresgäst. Det finns bra med utvändiga uppställningsytor.
Lokalen är ca 27 m djup (från port till bakre vägg) och ca 15 m bred i den inre delen av lokalen (se ritning)

En Garage/verkstads lokal i Hörnefors
Omklädningsrum och fikarum i samma byggnad delas med annan hyresgäst. Det finns bra med utvändiga uppställningsytor.
Lokalen är ca 27 m djup (från port till bakre vägg) och ca 15 m bred i den inre delen av lokalen (se ritning)

En Garage/verkstads lokal i Hörnefors
Omklädningsrum och fikarum i samma byggnad delas med annan hyresgäst. Det finns bra med utvändiga uppställningsytor.
Lokalen är ca 27 m djup (från port till bakre vägg) och ca 15 m bred i den inre delen av lokalen (se ritning)

En Garage/verkstads lokal i Hörnefors
Omklädningsrum och fikarum i samma byggnad delas med annan hyresgäst. Det finns bra med utvändiga uppställningsytor.
Lokalen är ca 27 m djup (från port till bakre vägg) och ca 15 m bred i den inre delen av lokalen (se ritning)

En Garage/verkstads lokal i Hörnefors
Omklädningsrum och fikarum i samma byggnad delas med annan hyresgäst. Det finns bra med utvändiga uppställningsytor.
Lokalen är ca 27 m djup (från port till bakre vägg) och ca 15 m bred i den inre delen av lokalen (se ritning)

En Garage/verkstads lokal i Hörnefors
Omklädningsrum och fikarum i samma byggnad delas med annan hyresgäst. Det finns bra med utvändiga uppställningsytor.
Lokalen är ca 27 m djup (från port till bakre vägg) och ca 15 m bred i den inre delen av lokalen (se ritning)

En Garage/verkstads lokal i Hörnefors
Omklädningsrum och fikarum i samma byggnad delas med annan hyresgäst. Det finns bra med utvändiga uppställningsytor.
Lokalen är ca 27 m djup (från port till bakre vägg) och ca 15 m bred i den inre delen av lokalen (se ritning)









